Ve výhradním zastoupení majitelů Vám nabízím k prodeji krajový řadový rodinný dům se dvěma garážemi a zahradou, nacházející se v klidné části města Úpice – Rtyňka.

Dům je postaven v kombinaci tradičních materiálů – zdivo (cihla) a dřevo. Díky své krajní poloze nabízí více soukromí, dostatek světla a širší možnosti využití než běžné řadové domy.
Nemovitost je určena k rekonstrukci, nicméně je ve velmi dobrém technickém stavu, což nabízí ideální příležitost pro úpravy dle vlastních představ bez nutnosti zásadních stavebních zásahů.



Nemovitost je napojena na inženýrské sítě – veřejný vodovod, kanalizaci, elektřinu a plyn.
Vytápění je řešeno plynovým kotlem, ohřev vody zajišťuje elektrický bojler.
Střecha domu je rovná, před přibližně 8 lety byla provedena nová střešní krytina (lepenka). Ve stejném období prošla rekonstrukcí také koupelna a byl vyměněn plynový kotel.


Součástí domu jsou dvě garáže. Nad jednou z garáží (přiléhající k domu) se nabízí potenciál pro vybudování zimní zahrady nebo rozšíření obytného prostoru. Tato možnost je pouze orientační a její realizace by podléhala schválení příslušným stavebním úřadem.
Za domem se nachází menší oplocená zahrada s přímým vstupem do lesa, která poskytuje dostatek soukromí a klidu.
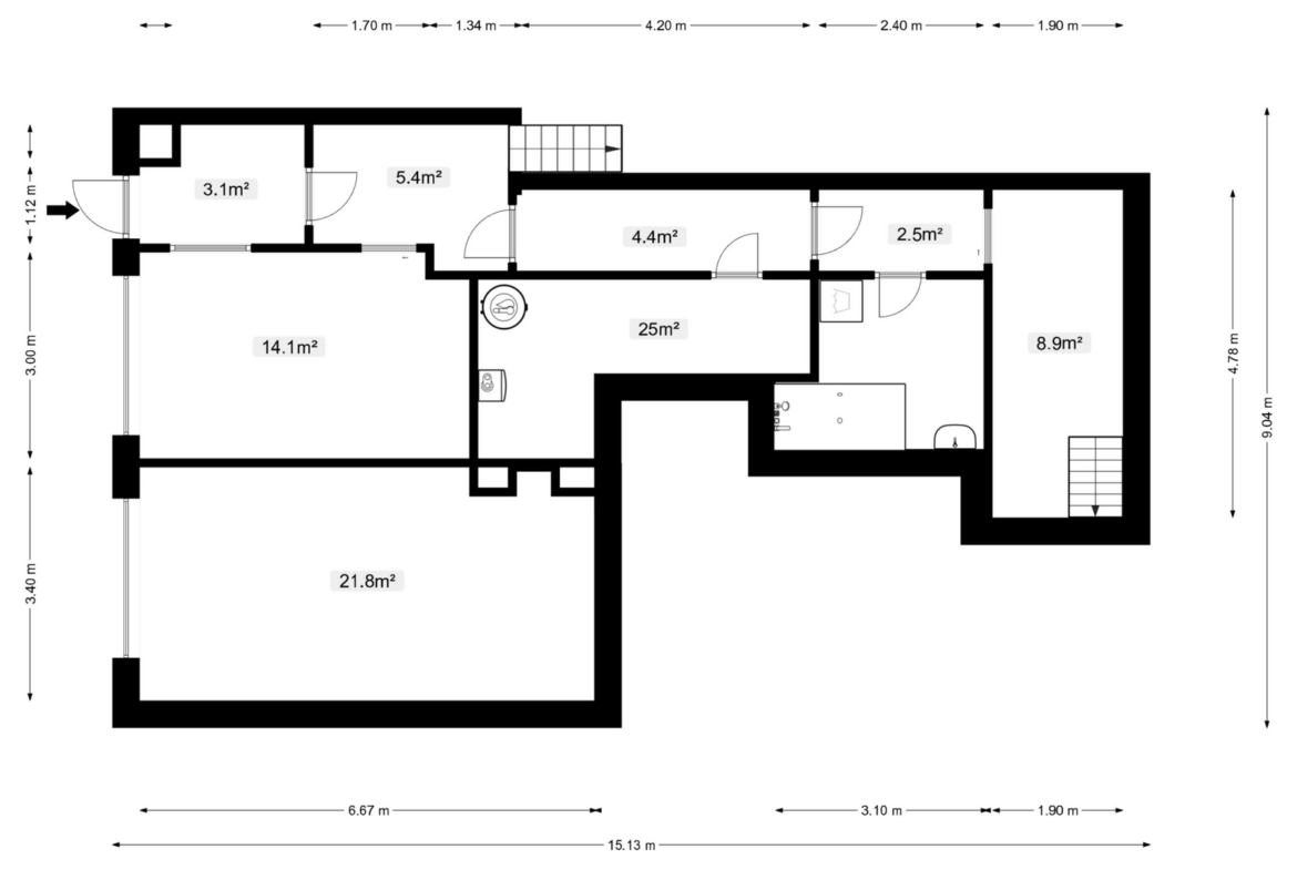
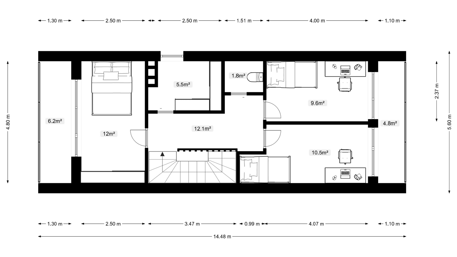
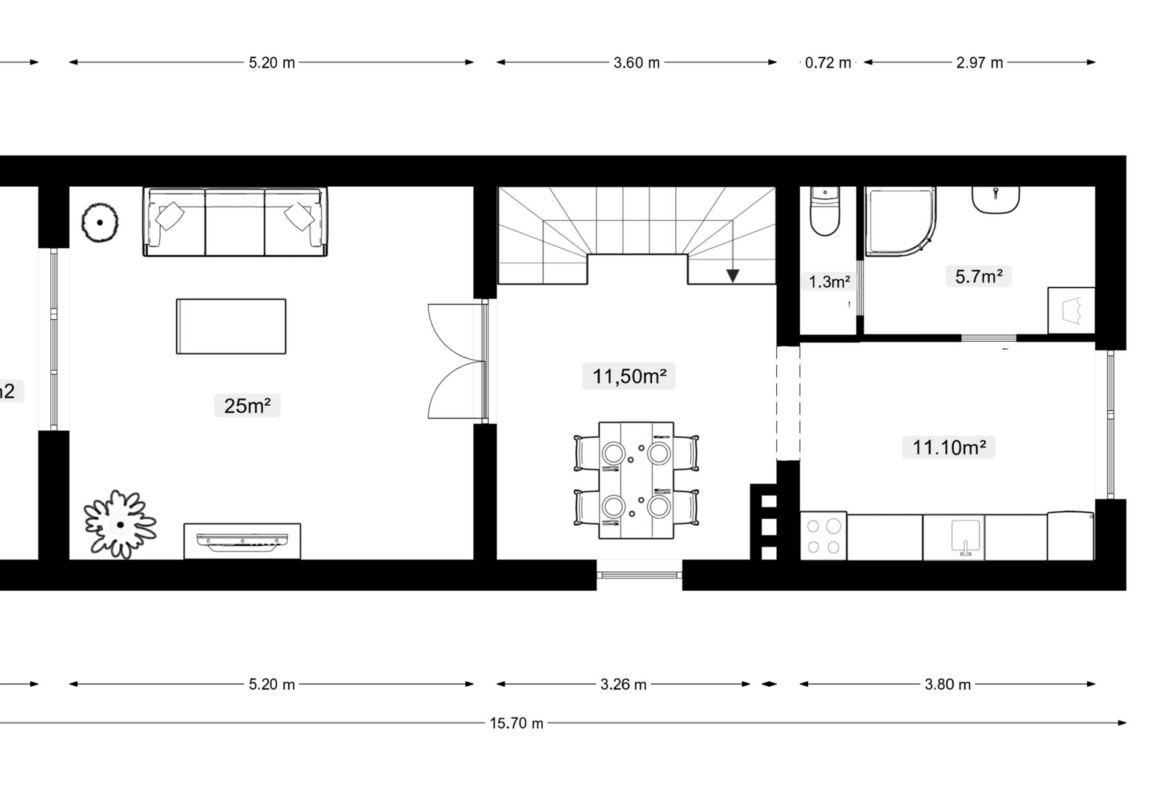
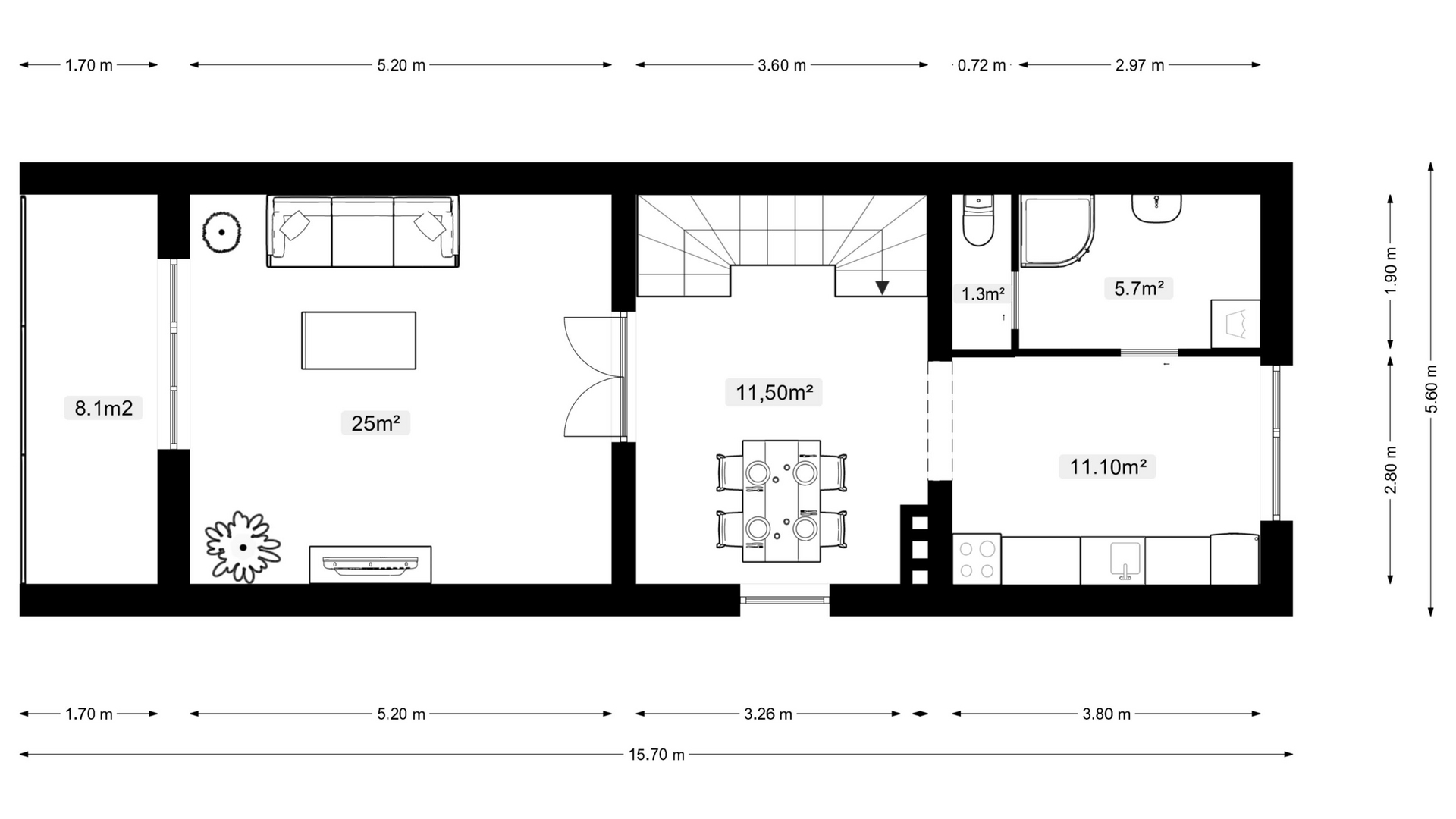
Dispozice domu:
1. NP:
zádveří, chodba se schodištěm, vstup do garáží, prádelny a skladu


2. NP:
jídelna se schodištěm do 1. NP a 3. NP, obývací pokoj, kuchyně, koupelna s WC, lodžie a vstup na zahradu


3. NP:
schodiště, 3x ložnice, šatna, samostatné WC, dvě lodžie


Dům nabízí praktické dispoziční řešení a dostatek prostoru pro rodinné bydlení.
Lokalita Rtyňka v Úpici je klidná a nabízí příjemné bydlení v blízkosti přírody, zároveň s dobrou dostupností do centra města. V Úpici naleznete kompletní občanskou vybavenost – školy, školky, zdravotní péči, obchody i dopravní obslužnost.


Cena nemovitosti: 4.290.000,- Kč
Cena zahrnuje advokátní úschovu kupní ceny, provizi realitní kanceláře, hypoteční servis, vklad do katastru nemovitostí, ověřování listin a kompletní právní servis.
Z důvodu dosud nedodaného průkazu energetické náročnosti budovy (PENB) uvádím dočasně energetickou třídu G, a to až do jeho zpracování a předložení.
Klíče od nemovitosti mám k dispozici, prohlídky jsou možné po předchozí domluvě.

Compare listings
Compare